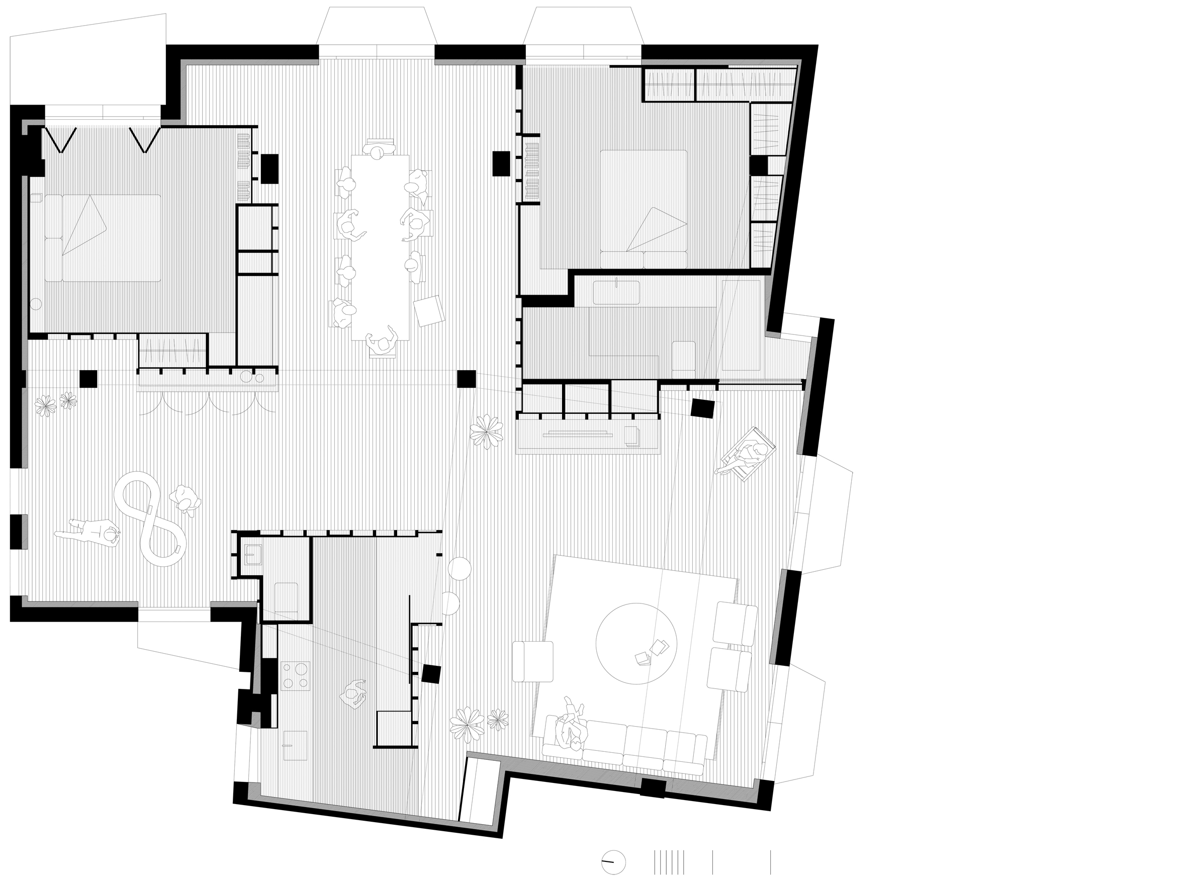
El apoyo es un piso de los años 60 en el casco antiguo de Palma. Un piso vacío, sin divisorias. Un piso desnudo. Las únicas preexistencias son meramente constructivas: estructura, cerramiento perimetral y bajantes. Son preexistencias inamovibles.
Cada uno los elementos que configure la intervención se colocará en un plano diferente, sin solaparse, mostrándose como elementos constructivos independientes. La propuesta prueba de evidenciar las características propias de la construcción. Mostrando los procesos, las texturas, los relieves, las juntas, las costuras.
La estructura existente es de hormigón armado, ésta se deja totalmente descarnada, sin piel, sólo huesos. La estructura será libre del resto de elementos.
El perímetro de la vivienda se aísla con corcho, tras un trasdosado cerámico. Las piezas cerámicas se colocan con junta vertical corrida, mostrando que no tienen función estructural. Se acaba con pintura, sin enyesar.
Los bajantes son el punto de partida a la hora de configurar el espacio y los usos. Tres estancias cerradas se colocan al tresbolillo. Serán de madera de abeto, un material ligero, que posibilita su libre posición, independientemente de la estructura. Se construyen con la piel dentro, mostrando la subestructura de escuadría que las configura y revistiéndose sólo por la cara interior de las habitaciones. Estas tres estancias son las más privadas de la vivienda y al mismo tiempo las que contienen la maquinaria de la casa. Son tres estancias cerradas, más íntimas, con un uso determinado, revestidas interiormente, donde cada cosa está en su sitio y los muebles son inmóviles. Entre ellas se generan tres espacios abiertos, maclados y comunicados diagonalmente. En estos tres espacios se acomodarán los usos más públicos de la casa. Son espacios abiertos, compartidos, sin concretar su uso, espacios de uso flexible, sin revestir, desnudos, donde los objetos del usuario flotan y los muebles son móviles.



















4 Comments
Hay ganas de verlo construido… en cuanto al comentario que habla del centro de la planta donde “no pasa nada”… pienso todo lo contrario… “puede pasar de todo”
Escelente diseño, y las fotos de una gran calidad artistica
Me parece un trabajo muy interesante y reflexivo sobre cómo se debe “reocupar” un espacio. No obstante me inquieta un poco que en el centro que tan potenciado está por la disposición de las piezas a su alrededor no “pase nada”. Me falta algo que fije y consolide más la planta.
Siempre me han interesado las pequeñas obras de arquitectura, pero cada vez me apasionan más. Cuanto mas diminuta mejor. Un excelente trabajo de encajes espaciales y anclajes de madera.