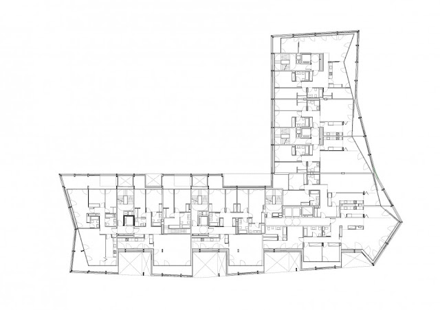
Abrazando la torre Iberdrola, en el nuevo centro financiero de Bilbao, se erigen los dos bloques de viviendas de lujo proyectados por los arquitectos Carlos Ferrater, Xavier Martí y Lucía Ferrater (Office of Architecture in Barcelona) y Luís Domínguez (Katsura Arquitectura y Urbanismo). Cada uno de ellos consta de planta baja más 8 plantas piso que flanquean la torre y quedan alineados en paralelo al Puente de Deusto, lo que le confiere a la obra un carácter emblemático propio de un emplazamiento singular como éste.
El proyecto plantea una óptima orientación en la disposición de las viviendas, que permite la ventilación cruzada y una mayor superficie de iluminación natural. Existe también una gran versatilidad tipológica en la proposición de las mismas – 1, 2 y 3 dormitorios-, dependiendo de si son viviendas simples o dúplex.
Los edificios se vacían partir de una determinada planta, dotándolos de espacios de uso privado o semiprivado, generando visuales y dibujando diversos y diferenciados sky-lines haciala plaza Euskadi o hacia la Campa de los Ingleses. La volumetría queda definida por el tratamiento de la envolvente exterior, pautada por unas costillas estructurales a toda la altura revestidas de latón sulfurizado que generan el pórtico de acceso al llegar al suelo.
La luz es la principal protagonista de estas viviendas, en cuyos huecos se han colocado las ventanas practicables dela serie Unicity de Technal. Cuentan con un mínimo perfil de aluminio visto desde el exterior, de tan sólo55 mm, y pese a disponer de un perfil tan discreto ofrece unas elevadísimas prestaciones en aislamiento térmico y acústico.
Las fachadas cuentan con una serie de elementos metálicos que permiten cubrir las zonas acristaladas para cuando se requiera intimidad, ya que las viviendas carecen de persianas, pero permiten que pase la luz y que se siga gozando de las vistas desde el interior.
Todas las viviendas han sido diseñadas con elementos innovadores y de criterios inteligentes: luz, aire acondicionado y calefacción se controlan gracias a la domótica desde un cuadro de mandos situado a la entrada. Y es que privilegio, exclusividad, elegancia y diseño son algunos de los conceptos que han permitido que el resultado de este proyecto sea todo un lujo donde vivir y disfrutar del entorno.

















14 Comments
cuánto odio no? para ser un volumen de planta baja más ocho en que las plantas van variando está bastante bien solucionado, dejando a un lado que la fachada tiene su interés, sobretodo por la ligereza que consigue. No pasará a la historia de la arquitectura (ni me importa) pero el edificio tiene muchos puntos favorables y aquí se le está lapidando porque sí.
Por cierto, decir que algo es mediocre sin explicar el motivo es bastante mediocre…
La mediocridad desde una posición favorable es criticable,
la mediocridad desde una posición sin recursos es admirable.
Estoy de acuerdo que estas viviendas no son paradigmáticas ni mucho menos, y que Ferrater&company lo saben hacer mejor pero en este blog han aparecido cosas mucho peores y nadie ha abierto la boca.
Ser finalista de los premios FAD es un argumento?
No sería la primera vez que alguien ganara algo injustamente y de todas formas sería la opinión de unos pocos que forman un jurado.
Estas viviendas son finalistas de los premios FAD.Vale que no es lo mejor que ha hecho Ferrater , pero tan mal están?
Nunca visto……
Sin verguenza!
Tópico y ramplón. Ferrater subiéndose al tren de la mediocridad.
Arghhh!
http://es.wikipedia.org/wiki/Archivo:Torre_Iberdrola.jpg
Urbanísticament això no te nom…
Es digne d'estudi l'entrega amb el terreny de la torre Iberdrola, i la seva fastuosa entrada. És tan impresentable que el fotògraf ha evitat retratar-la sent l'emmarcament de la torre un dels punts singulars del projecte del Ferrater.
P.S. Realment cal que “ventanas Unicity de Technal” estigui en negrita? Els hi fan descompte?
Es vergonzoso que un arquitecto de su embergadura solucione tres edificios con la misma solución de fachada para ubicaciones tan distintas.
La fachada y los retranqueos me parecen un “homenaje” poco conseguido de las torres de Clotet-Paricio en Diagonal Mar de Barcelona.
Skylines???? però si la cota de coronació és la mateixa a tot el bloc…mi no entender.
está previsto poderse tirar en paracaídas desde la torre hasta la cubierta de las viviendas? que coñazo de proyecto y que basura de explicación! que si abrazos, que si emblemático. que si skyline… para cuando un campo semántico renovado? joder que como sigamos así vamos a parecer monaguillos!!
saludos
Yo cambiaba todas las chapas de la fachada por una distribución mejor.