La torre E.I.O.5 es un proyecto de vivienda social promovido por INCASOL y está ubicado en una nueva zona central conocida como Plaça Europa (Plaza Europa). La Plaza de Europa, según el Proyecto de Albert Viaplana, se perfila como el último desnudo en la dirección de las plazas de Llobregat que, aproximadamente cada kilómetro, marca la Gran Vía de les Corts Catalanes.
El modelo urbano de la Plaza Europa es un generoso espacio público abierto a cada lado de la Gran Via que concentra, con otros edificios, 26 torres de usos terciarios y residenciales, públicos y privados, entre 15 y 20 pisos. La Torre 5 está situada en la corona más alejada de la Gran Vía, que se extiende a medio fondo.
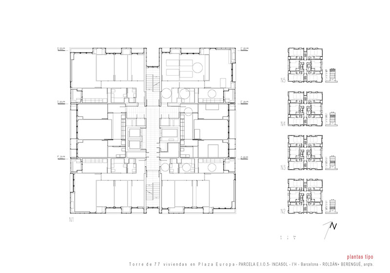
Para todos los edificios de este último anillo, la mayoría de viviendas públicas promovidas por diferentes clientes, las leyes de distribución en la planificación maestra fijan una dimensión máxima del piso de 24×24 m, así como la altura en la que debe ubicarse la estructura del primer piso y el canto punto de las torres.
La pieza que habíamos construido fue objeto de concurso público de clientes en febrero de 2005. En nuestra propuesta se reescala la torre según su posición como una pieza en el límite con el tejido consolidado de Hospitalet tratando de visualizar con el edificio un movimiento entre Plaza Europa y los bloques de 5 pisos que forman el entorno. Agrupando pisos de 3 a 3, la imagen de la torre, percibida en algún tipo de plan cinematográfico, podría aproximarse a un edificio de 5 pisos de altura.
En consecuencia, la escala de las ventanas, de acuerdo con esa ley de agruparlas, también se está transformando en marcos de 10 metros de altura y diferentes espesores. Para ser más precisos, la fachada y las ventanas, estas últimas con un número secuencial y moduladas en piezas con dimensiones similares a una puerta (0,8 x 2,10 m), tienen éxito en diferentes planos con una profundidad que oscila entre los 50 cm y 1,2 metros y enfatiza el concepto de grandes tribunas invertidas. En cada sección de la torre, el primer piso de cada serie de 3 es un balcón.
Como algunas de las imágenes en un “plano corto” que hemos hecho para la competencia nos muestran, estos marcos evitan la impresión de vértigo porque entre el interior y el exterior del apartamento siempre hay un elemento intermedio: balcones, jambas o los dinteles de estos grandes agujeros.
La elección de los elementos para el montaje de la fachada se ha realizado prestando atención a un estudio comparativo de varias soluciones constructivas que evaluaron el origen de los materiales ya reciclados, su origen natural y la capacidad de reciclarse al final de su vida útil. Asimismo, se valoró el gasto de energía de fabricación y la política recuperada de la energía sobrante generada durante el proceso de producción. Materialmente, la fachada está construida con una lámina de 8 mm de espesor de paneles laminados de alta presión colgando de una estructura oculta de perfiles de aluminio reciclado. Los marcos negros están hechos de paneles compuestos de aluminio de 4 mm de grosor que brindan la misma resistencia con un menor peso por m2 a cualquier otro material con las mismas características.
Resumiendo, todos los materiales usados en la construcción de las torres son 100% reciclables y específicamente los que se utilizan en la fachada provienen de un 65% y 100% de materiales ya reciclados.
La torre se coloca en el plano del piso ya que dos torres con T forman un corredor de circulación y dos escalas en los extremos a través de una iluminan el interior en la zona de circulación. Cada torre tiene dos apartamentos de 69 m2 en los extremos y uno de 56 m2 en la posición central. Totalmente, el programa es de 75 unidades. En este proyecto, la distribución de la unidad de apartamento comienza en el piso 14 y sigue descendiendo para que el volumen residencial compacto del piso superior libere un espacio de 3 niveles de altura con una forma en T en el acceso. Esta pieza, generosa en volumen y “sobria” en medidas y materiales de acabado, en su dimensión más larga termina siendo una calle con accesos en los extremos y tiene dimensiones inusuales para la entrada del edificio de edificios de vivienda pública habituales.
Creemos que los grandes marcos de las fachadas, así como el espacio del hall de entrada, funcionan como espacios intermedios de relación, configurando la escala de la comunidad, entre la escala individual y privada de las casas y la escala de la ciudad pública.























2 Comments
El reportatge és —va sortir fa uns dies— d'ArchDaily, muntat per un tal Andrew Rosenberg (tot i que això sembla ser la memòria del projecte, per l'ús de la primera persona), no de cap coi de Metalocus ni de cap coi de José Juan Barba:
http://www.archdaily.com/130267/social-housing-tower-of-75-units-in-europa-square-roldan-berengue/
Normalment, tots els reportatges que tenen un mínim d'interès, apareixen en webs de l'òrbita anglosaxona. Els llatins només copien continguts, i, el què és pitjor, sovint sense citar-ne les fonts originals, com és el cas d'aquest post.
20% d'atur (i encara gràcies)… “que inventen ellos”, no?
El reportatge és —va sortir fa uns dies— d'ArchDaily, muntat per un tal Andrew Rosenberg (tot i que això sembla ser la memòria del projecte, per l'ús de la primera persona), no de cap coi de Metalocus ni de cap coi de José Juan Barba:
http://www.archdaily.com/130267/social-housing-tower-of-75-units-in-europa-square-roldan-berengue/
Normalment, tots els reportatges que tenen un mínim d'interès, apareixen en webs de l'òrbita anglosaxona. Els llatins només copien continguts, i, el què és pitjor, sovint sense citar-ne les fonts originals, com és el cas d'aquest post.
20% d'atur (i encara gràcies)… “que inventen ellos”, no?